Hopp til innhold

Hvor vil du bygge?

Provide correct postcode
Sør-Norge
Sør-Norge
Innlandet
Innlandet
Oslo, Akershus og Østfold
Oslo, Akershus og Østfold
Telemark
Telemark

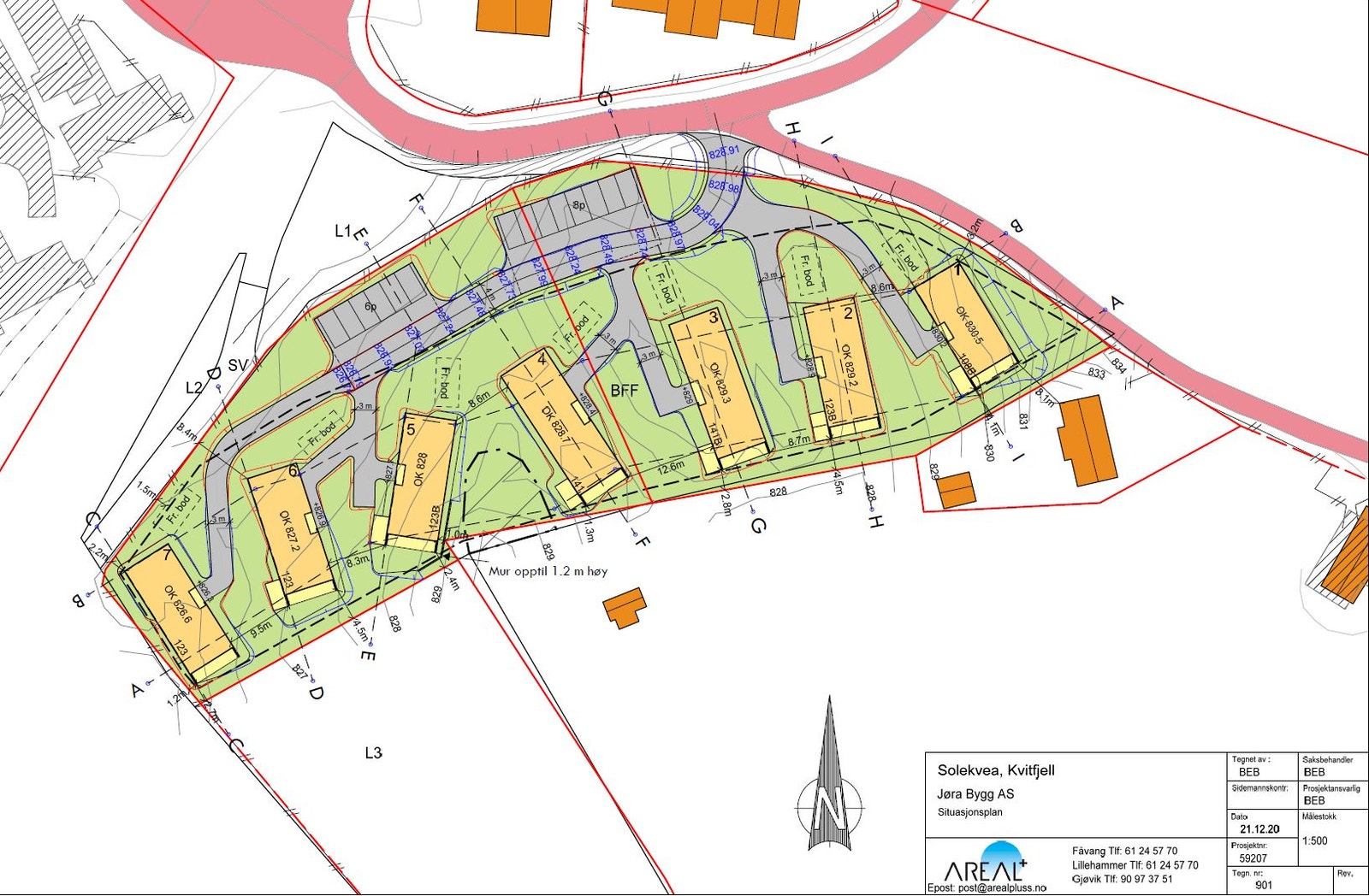
6 selveiertomter med den populære hyttemodellen PREG – leveres nøkkelferdig!

Odd Arne Solberg

Daglig Leder

arne@jora-bygg.no 99203040

Hans Oddvar Høistad

Selger Hytter - Hus Innlandet

hans.oddvar@jora-bygg.no 90188467

Meld interesse 6 selveiertomter med den populære hyttemodellen PREG – leveres nøkkelferdig!

    Bestill vår hyttekatalog

    Utforsk våre flotte hyttemodeller – bygg selv eller la oss gjøre det.

      Har du allerede tomt?

      Ja, jeg har tomtNei, jeg har ikke tomt

      Hvordan vil du få tilsendt katalogen?

      Jeg har lest og godtar samtykkeerklæringen*

      Samtykkeerklæring