Hopp til innhold

Hvor vil du bygge?

Provide correct postcode
Sør-Norge
Sør-Norge
Innlandet
Innlandet
Oslo, Akershus og Østfold
Oslo, Akershus og Østfold
Telemark
Telemark

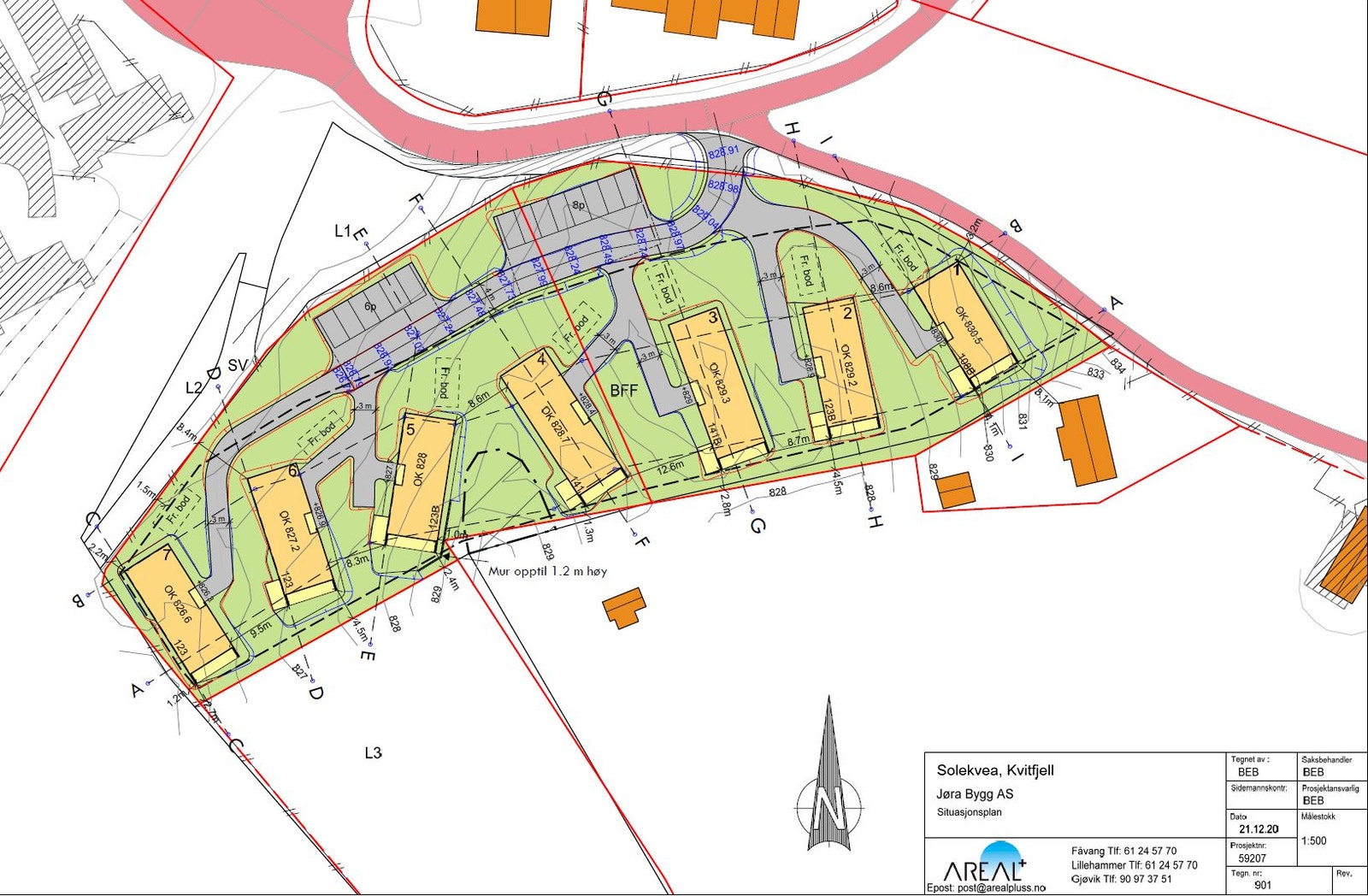
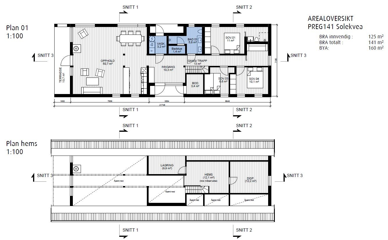
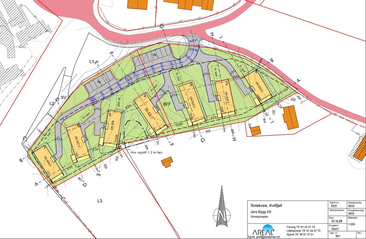
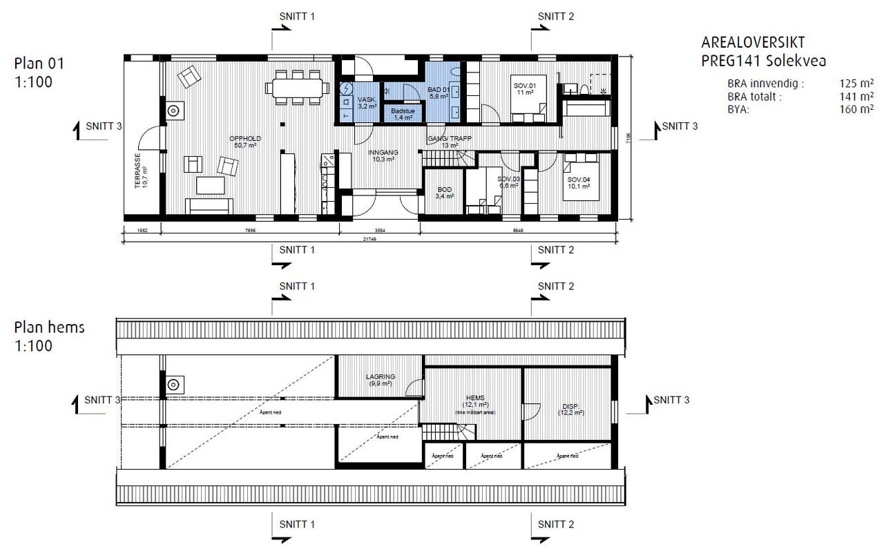
Hytte 4 – Preg 141

  • Bruksareal

    141 m2

Odd Arne Solberg

Daglig Leder

arne@jora-bygg.no 99203040

Hans Oddvar Høistad

Selger Hytter - Hus Innlandet

hans.oddvar@jora-bygg.no 90188467

Meld interesse Hytte 4 – Preg 141

    Bestill vår hyttekatalog

    Utforsk våre flotte hyttemodeller – bygg selv eller la oss gjøre det.

      Har du allerede tomt?

      Ja, jeg har tomtNei, jeg har ikke tomt

      Hvordan vil du få tilsendt katalogen?

      Jeg har lest og godtar samtykkeerklæringen*

      Samtykkeerklæring