Hopp til innhold

Hvor vil du bygge?

Provide correct postcode
Sør-Norge
Sør-Norge
Innlandet
Innlandet
Oslo, Akershus og Østfold
Oslo, Akershus og Østfold
Telemark
Telemark

Nesfjellet – Stor og flott familiehytte – ski in/out – prosjektert på flott, vestvendt og solrik tomt – Heimdall 110!

  • Pris

    6 415 092 kr

  • Bruksareal

    110 m2

  • Soverom

    4

Beliggenhet

Kontakt selger for å avtale befaring på tomta hvor denne hytta planlegges bygget!

Natten Alpin Hyttefelt. Sol og utsiktsrike høystandard tomter – Ski inn/ut alpin/langrenn

Natten Alpin hyttefelt ligger på Natten i Nesfjellet. Hele hyttefeltet ligger vestvendt og har en solrik beliggenhet som grenser helt inntil tilbringerløypa og barnebakke til Nesfjellet Alpin. Via tilbringerløypa som ligger rett foran hytta, så tar du deg enkelt inn i langrennsløypene i Nesfjellet.

Velger du å bygge hytte i Natten Alpin hyttefelt så gjør du det blant annet for at du ønsker å ha det så lettvint som mulig når du er på fjellet.
Du kan kjøre til døren og la bilen stå til du skal reise hjem siden du har umiddelbart tilgang til alpinanlegg.
Med en så lettvint beliggenhet vil gleden av å reise på fjellet bli enda større, og gjør nok at du kommer til å bruke din nye leilighet oftere enn du kanskje hadde tenkt.

Nesbyen alpinsenter som du sklir rett ut i har mange forskjellige løyper.
Har du lyst til å nyte snaufjellet er det milevis med oppkjørte skiløyper.

Når snøen forsvinner er det supre turmuligheter, fine sykkelstier og fjellvann å fiske eller bade i.
Er du interessert i golf ligger golfbanen en spasertur unna.

Du kan også besøke Bjørneparken eller se mating av ulvene på Langedrag som ligger en liten biltur unna.

https://nattenalpin.no/aktiviteter/


Generelt

Hytta som er prosjekt bygget på tomt T26 på hyttefeltet Natten Alpin på Nesfjellet, er vår hyttemodell Heimdall 110 fra katalogen.

Moderne hytte Heimdall 110:
H-Hytte Heimdall 110 er en flott H hytte i form og med en oppstuggu del, i et mer moderne uttrykk som gir godt med naturlig lys og kontakt med naturen på utsiden.
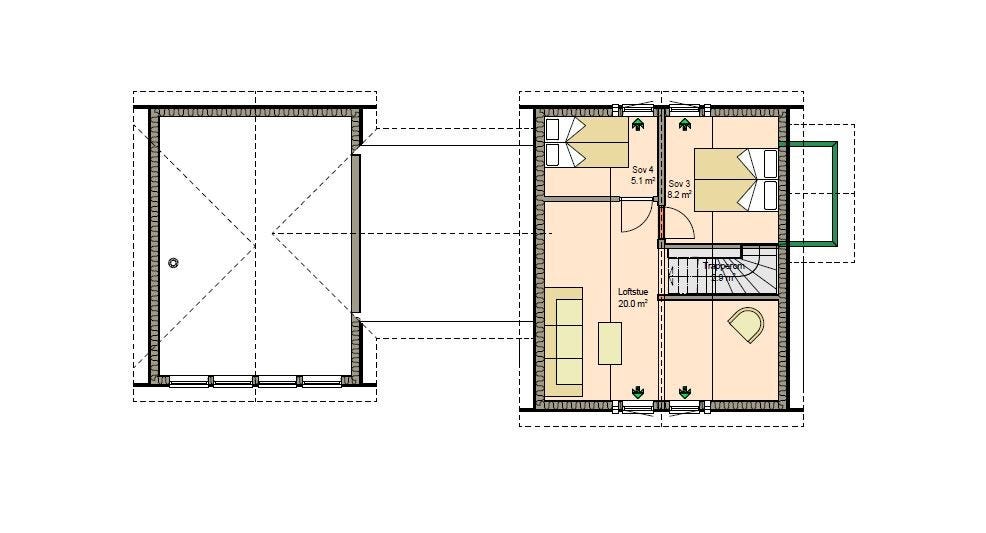
Hytta inneholder en stor stue med eget, åpent rom for kjøkken, bod med egen inngang som kombineres med vaskerom og tekniske installasjoner, gjestetoalett med praktisk inngang fra entrè, to soverom og ett bad. Oppe i 2 etasje kommer du inn i en god loftstue og 2 soverom.
Hytte Heimdall er en stor familiehytte som tilpasses deg og ditt behov sammen med vår arkitekt.

Vi har i denne prisen ikke tatt med kostnader for tomtekoordinater/utstikking, situasjonsplan og profiler for plassering av hytta på tomten, tilkoblingsgebyr for Vann og Kloakk, gebyr nabovarsel og byggesøknad, container/avfallshåndtering, utvendig sikringsskap og enkel utvask av hytta før overtagelse. Vi er behjelpelige med å bestille og koordinere alle disse tingene, men kostnaden faktureres kjøper direkte, for å unngå unødvendige påslag gjennom oss som utbygger.

Inkludert i prisen er det tomtepris til 1 950 000,-.
Estimert pris på kr. 530 000,-, er medtatt som en budsjettpris, for graving- og betongarbeider.
Prisen er pr. august 2025 og vil justeres etter byggekostnadsindeksen.
Tomtepris og grunnarbeider/betongarbeider kan variere fra tomt til tomt, om du vil bygge denne hytta på en annen tomt på feltet.
Hvis du ønsker for eksempel andre farger eller materialvalg kan du få det til forhåndsavtalt pristillegg.

I tillegg til pris tilkommer:
•Byggesaksgebyr.
•Tilknytningsavgift vann og avløp
•Tilknytning strøm.
•Byggestrøm
•Målebrev, Container/avfallshåndtering og utvask.

Ikke inkludert i leveransen (kan leveres av Berge Hytta):
• Belysning og panelovner
• Møbler og skap
• Maler- og beisarbeider utvendig
• Innvendig maling, lakk, beis, tapet og gulvbelegg
• Forblending av naturstein
• Utvendig trapp, terrasse(r) og rekkverk

Leveransen er i henhold til "TEK 17". Berge Hytta (Berge Sag) innehar merket Trygt Hyttekjøp fra Hytteprodusentene og følger deres kvalitetsnorm.
Vi bruker standard bransjekontrakt i henhold til Bustadoppføringslova.
Berge Sag er ansvarlig søker og står for innhenting av ansvarsretter, byggemelding, innhenting av samsvarserklæring og søknad om ferdigattest.
Berge Sag står for prosjekt- og byggeledelse.

Med forbehold om feil. Prisen er veiledende, ønsker du eksakt tilbud ta kontakt med selger. Prisen vil bli regulert i henhold til SSBs bygge kostnadsindeks.


Adkomst/Tomteforhold

Nesfjellet ligger i Nes kommune i Hallingdal ca. 16 mil fra Oslo.
Du kjører Riksveg 7 til Nesbyen og tar til venstre opp Fylkesvei 214 opp Rukkedalen. Etter ca. 7 km tar du til venstre opp til Nesbyen Alpinsenter (5 km).
Når du kommer til Nesbyen Alpinsenter ta til venstre på Nattenvegen og kjør 300-400 meter.
Kjør inn til venstre på Turmalinvegen, så første vei til høyre og inn på Serpentinvegen og da kommer du rett på tomta på høyre hånd der.


Standard

Hytte med god standard.

Se våre nettsider for leveransebeskrivelse eller kontakt selger for info.

Gunnar Kleppe

Hytteselger

gunnark@bergesag.no 911 39 822

Ronny Gundersen

Hytteselger

ronnyg@bergesag.no 98229386

Meld interesse Nesfjellet – Stor og flott familiehytte – ski in/out – prosjektert på flott, vestvendt og solrik tomt – Heimdall 110!

    Bestill vår hyttekatalog

    Utforsk våre flotte hyttemodeller – bygg selv eller la oss gjøre det.

      Har du allerede tomt?

      Ja, jeg har tomtNei, jeg har ikke tomt

      Hvordan vil du få tilsendt katalogen?

      Jeg har lest og godtar samtykkeerklæringen*

      Samtykkeerklæring